#2階建て#分譲住宅#TERASIA

福岡市東区
美和台/TERASIA
美和台1号棟

1号棟

木のアクセントが映えるシンプルモダンな外観。

植栽と調和する美しいデザインが印象的です。

● 設計士による丁寧なプランニング
広々LDKも、こもり感のある個室も。暮らし方に合わせて、ちょうどいい空間を。

●高性能な住まいで、ずっと快適に。
・G1グレード(UA値0.56以下)の断熱性能
・気密性能C値0.3!(注文住宅と同レベル)
・床下エアコン搭載で、家全体がぽかぽか
・耐震等級3、そして省令準耐火仕様

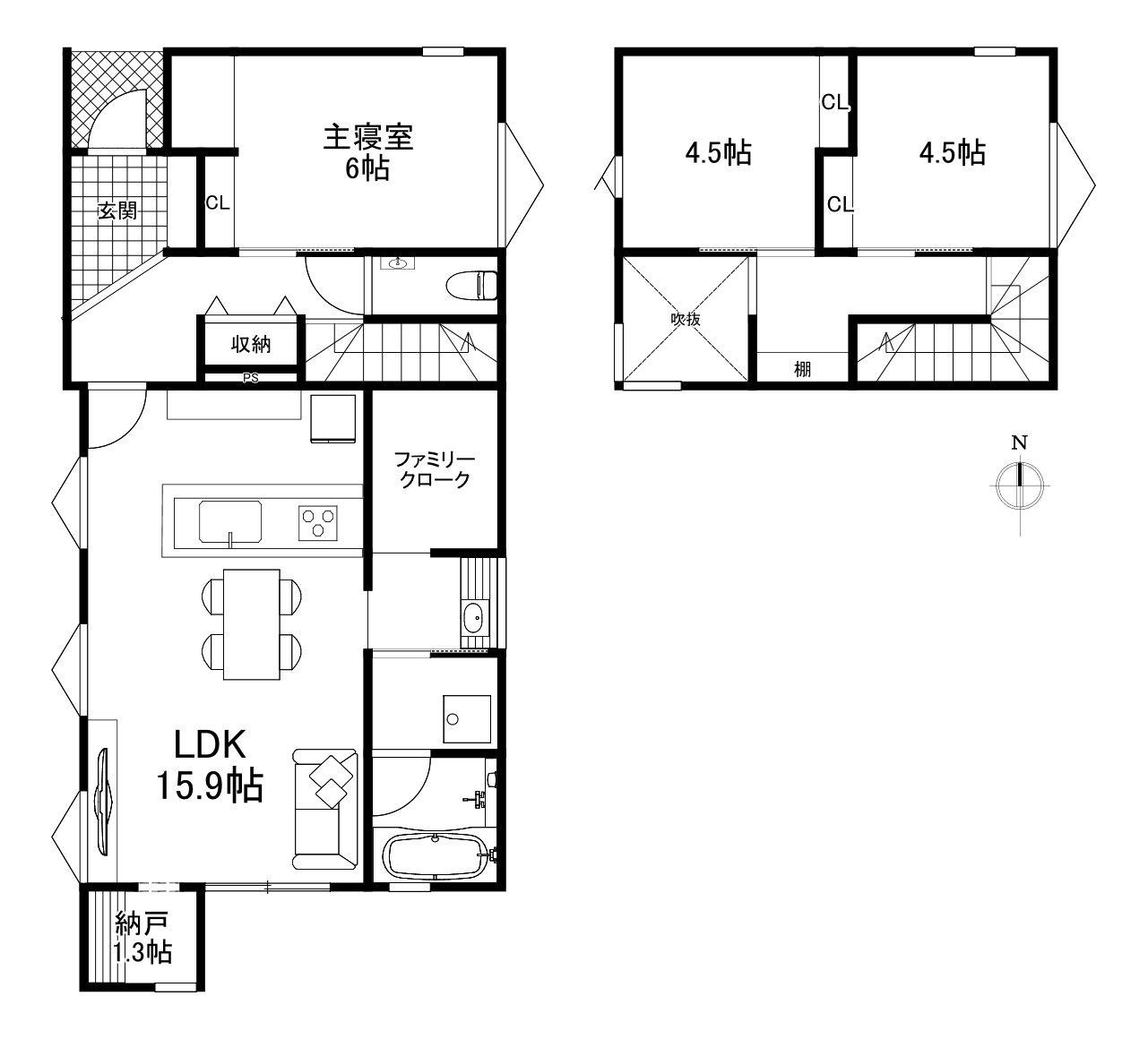
5,480万円

敷地面積 167.34㎡ (50.7坪)

延床面積 89.64㎡ (27.2坪)

間取りFLOOR PLAN

周辺環境ENVIRONMENT

  • 三苫駅

    三苫駅まで300m

  • セブンイレブン福岡三苫3丁目店

    セブンイレブン福岡三苫3丁目店まで834m

  • 福岡市立美和台小学校

    福岡市立美和台小学校まで332m

  • 福岡市立和白丘中学校

    福岡市立和白丘中学校まで1066m

学校区
福岡市立美和台小学校/福岡市立和白丘中学校
買い物施設
ディスカウントドラッグコスモス三苫店:徒歩10分(789m)
ドラッグストアモリ三苫店:徒歩13分
ドラッグストアモリ和白店:徒歩19分(1457m)
公園
美和台南公園:徒歩2分(90m)
美和台中央公園:徒歩7分(513m)

アクセスACCESS

物件概要INFORMATION

学校区
福岡市立美和台小学校/福岡市立和白丘中学校
販売価格(税込)
5,480 万円
敷地面積
167.34㎡ (50.7坪)
延床面積
89.64㎡ (27.2坪)
所在地
福岡市東区美和台
地目
宅地
用途地域
第一種低層地域
建ぺい率
50%
容積率
80%
道路
西道路:幅員6.1m
北道路:幅員4.1m
設備
キッチン:Panasonic ラクシーナ
洗面:AICA スマートサニタリーU
浴室:Panasonic オフローラ
トイレ:Panasonic アラウーノ

お問い合わせCONTACT

ご希望の日時

ご来場をご希望の場合は入力してください

第1希望日

希望時間

第2希望日

希望時間

お名前*
お名前(ふりがな)*
年齢*
電話番号*
メールアドレス*
ご住所*

※郵便番号を入力すると、自動で住所が入力されます

  • 郵便番号

  • 都道府県

  • 市区町村

  • 番地・建物名

WITHDOM建築設計を
初めて知った
きっかけ*

福岡県内での建築希望*

建設予定地について*
ご質問・ご要望等
アンケートに答える
当日ご相談したい内容があればご選択ください
(複数回答可)*
よく見るWITHDOM建築設計のSNSは何ですか?
(複数回答可)*
弊社に相談してみようと思われたきっかけに当てはまる項目があれば教えてください
(複数回答可)*


ご入居予定の家族構成について教えてください必須

続柄


年齢

新しいお住まいについて、いつ頃からご検討を始められましたか?*
ご入居希望時期はありますか?*
新しいお住まいをご検討される理由は何ですか?
(複数回答可)*
今後のスケジュールはどの様なイメージですか?
(複数回答可)*
現在のお住まいはどのタイプですか?*
お家づくりで重視する点は何ですか?
(複数回答可)*

住宅ローンをご検討の場合、ご希望の月々返済額を教えてください
昨年度のそれぞれのご年収を教えてください*

ご主人

 

奥様

勤続年数を教えてください*

ご主人

 

奥様

頭金のご予算はお決まりですか?*
現状ローンはございますか?
その他ご要望
個人情報について*

【ドメイン指定受信のお願い】
@withdom-group.jpのドメイン指定受信の設定をお願いします。お申し込み頂いたお客様には、自動で受付確認メールを送信しております。受付確認メールを受信されていないお客様は、受信設定により弊社からのメールを受信拒否している恐れがございますので、ご確認下さい。特に携帯電話のメールは、キャリアによって複数の受信設定がございますので、事前にご確認お願い致します。